坂戸市伊豆の山町 新築戸建(売買 新築一戸建て) | 坂戸市伊豆の山町 | 東武東上線沿い不動産売却・購入のご相談はヤマダ不動産坂戸店まで!

坂戸市伊豆の山町 新築戸建 | 坂戸市伊豆の山町の不動産物件

【新築一戸建て】 新築 駐車場あり
価格 3,250万円 (税込)
東武鉄道東上線 北坂戸駅 徒歩12分
スマホ表示
物件コード:121032
所在地 建物面積
土地面積
間取り 築年月
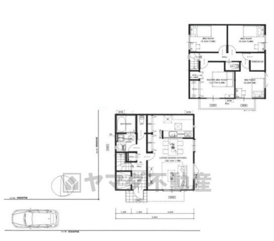
埼玉県坂戸市伊豆の山町 99.36m2
174.81m2
4LDK 2026/05

物件基本情報

▲前面道路から離れた場所に位置しており、通行するお車の音や外部の視線が届きにくい独立性の高い立地です。周囲を気にせず、マイペースに過ごせるゆとりある広さの整形地です
▲1階は家族が集まる広々としたLDK、2階には独立性の高い4つの個室を備えた機能的な間取りです 各居室にクローゼットが完備されており、5帖クラスのお部屋もお子様部屋や書斎として無駄なく活用いただけます
物件種目 新築一戸建て
物件名称 坂戸市伊豆の山町 新築戸建
所在地 埼玉県坂戸市伊豆の山町
交通
東武鉄道東上線 北坂戸駅 徒歩12分
東武鉄道東上線 坂戸駅 徒歩29分
階数 2階建
建物構造 木造
建ぺい率/容積率 50% / 80%
駐車場 有 (1台)
学校 桜小学校 / 桜中学校
設備・条件
  • ガス:都市ガス
  • 汚水:公共下水
  • 水道:公営水道
  • TVドアホン
  • Wクローゼット
  • 追い焚き
  • 洗浄便座
  • シャンプードレッサー
  • 浴室1坪以上
  • カウンターキッチン
  • コンロ三口
  • システムキッチン
  • バルコニー
  • バス・トイレ別
ヤマダ不動産 坂戸店
Tel049-298-3966
お気軽にお問い合わせください。

画像・写真

  • 奥行きのある敷地形状を活かし、道路からの距離を保つことで防犯面での安心感も高まります。洗車や荷物の積み下ろしも周囲の交通を気にせずマイペースに行えるのが魅力。自分たちだけの専用空間を存分に活用可能です
    奥行きのある敷地形状を活かし、道路からの距離を保つことで防犯面での安心感も高まります。洗車や荷物の積み下ろしも周囲の交通を気にせずマイペースに行えるのが魅力。自分たちだけの専用空間を存分に活用可能です
  • 入り口から玄関まで続く専用の通路は、お子様の急な道路への飛び出しを防ぐ安全なスペースです お車を縦列で駐車できるほか、自転車やベビーカーを置く場所としてもゆとりを持って活用できるのが嬉しいポイントです
    入り口から玄関まで続く専用の通路は、お子様の急な道路への飛び出しを防ぐ安全なスペースです お車を縦列で駐車できるほか、自転車やベビーカーを置く場所としてもゆとりを持って活用できるのが嬉しいポイントです

周辺地図

地図を表示中...
ストリートビュー未対応エリアです。

物件詳細情報

物件用途 居住用 地目
間取り詳細 LDK17畳(1F)、洋6.5畳(2F)、洋5.6畳(2F)、洋5畳(2F) 都市計画 市街化区域
建物向き 用途地域 第一種低層住居専用地域
土地面積基準 実測 接道 公道 西 幅員6m
土地権利 所有権 私道面積 -
借地条件 - 道路位置指定 -
地代 - 不適合接道 -
建築確認番号 YKH25-10-3274号 セットバック -
現況 - 国土法届出 不要
引渡時期 相談 取引態様 仲介
設備その他 -
特記事項 -
備考 -
情報更新日 2026/04/17 広告有効期限 2026/05/01
電話でお問い合わせ
ヤマダ不動産 坂戸店 店舗情報
[所在地] 埼玉県坂戸市八幡1丁目3-45 家電住まいる館YAMADA坂戸店 2階 
[営業時間] 10:00~19:00 定休日:毎週水曜日
Tel049-298-3966
お気軽にお問い合わせください。